Bauherr
Rangierung
Planungszeit
Freifläche
Stadt Würzburg
Preisgruppe 1. Stufe
01/2009-02/2009
390.000,00 m²
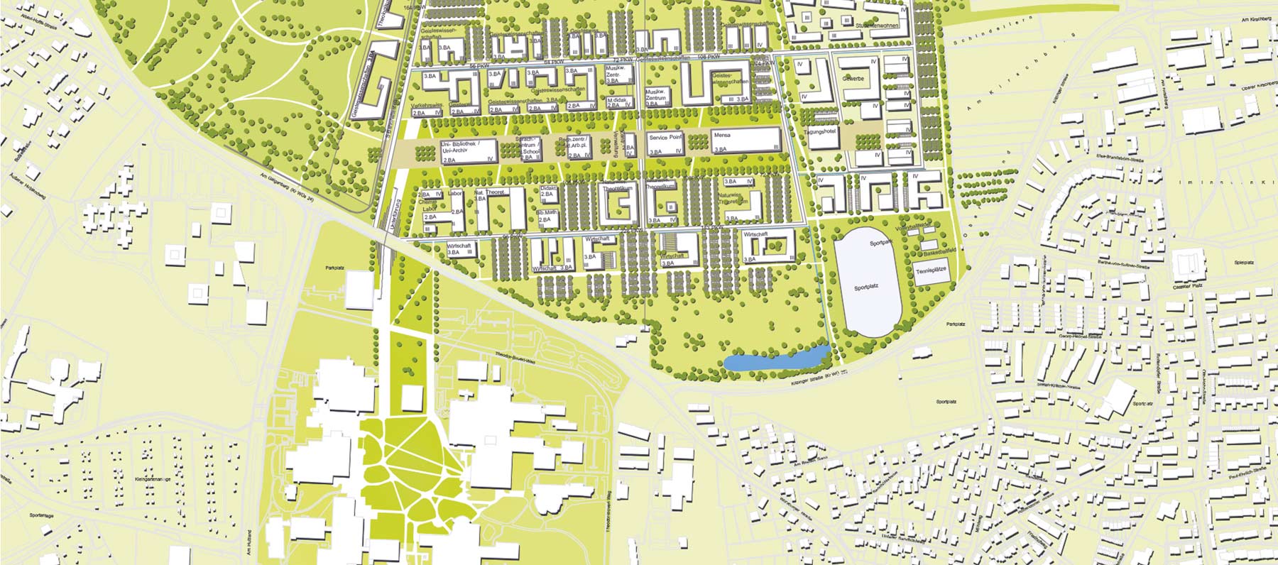
Das städtebauliche Konzept basiert auf der Idee ein “Quartier im Park“ zu schaffen. Der städtebaulichen Grundstruktur liegt eine 3-Teilung des Leighton Areals zugrunde. Mittelpunkt dieser Teilung bildet der zentrale Platz entlang der Eschenallee mit Ausblick auf die Marienburg. Nördlich davon befinden sich 6 Wohnquartiere, im Süden die 39 ha große Universitätserweiterung. Im Osten gliedert sich das Gewerbe, die Forschungseinrichtungen und das studentische Wohnen an. Der Westen ist der Landesgartenschau vorbehalten. Entlang der Erschließungsstraße entsteht eine 3-4-geschossige dichte Bebauung im Norden, in der vor allem im Erdgeschoss Kleingewerbe angeboten wird. Zusätzlich dazu enthält der Zentrumsplatz einige vereinzelte Dienstleistungseinrichtungen. Der Geschosswohnungsbau befindet sich schwerpunktmäßig entlang der Erschließungsstraße. Die überwiegend 4-geschossigen Punkthäuser („Stadtvillen“) werden in die Topografie eingebettet und vermitteln den Charakter des „Wohnens im Park“. Die Einfamilienhausbebauung besteht hauptsächlich aus Reihenhäuser bzw. Kettenhäusern und garantieren somit ebenfalls das “Wohnen im Park“. Das Uni-Erweiterungsareal erhält einen im Zentrum liegenden Campus, der von großzügigen Grünflächen umschlossen ist.


