Auslober
Planungszeit
Bauzeit
Stadt Bayreuth
02/2011-03/2011
560.000,00 m²
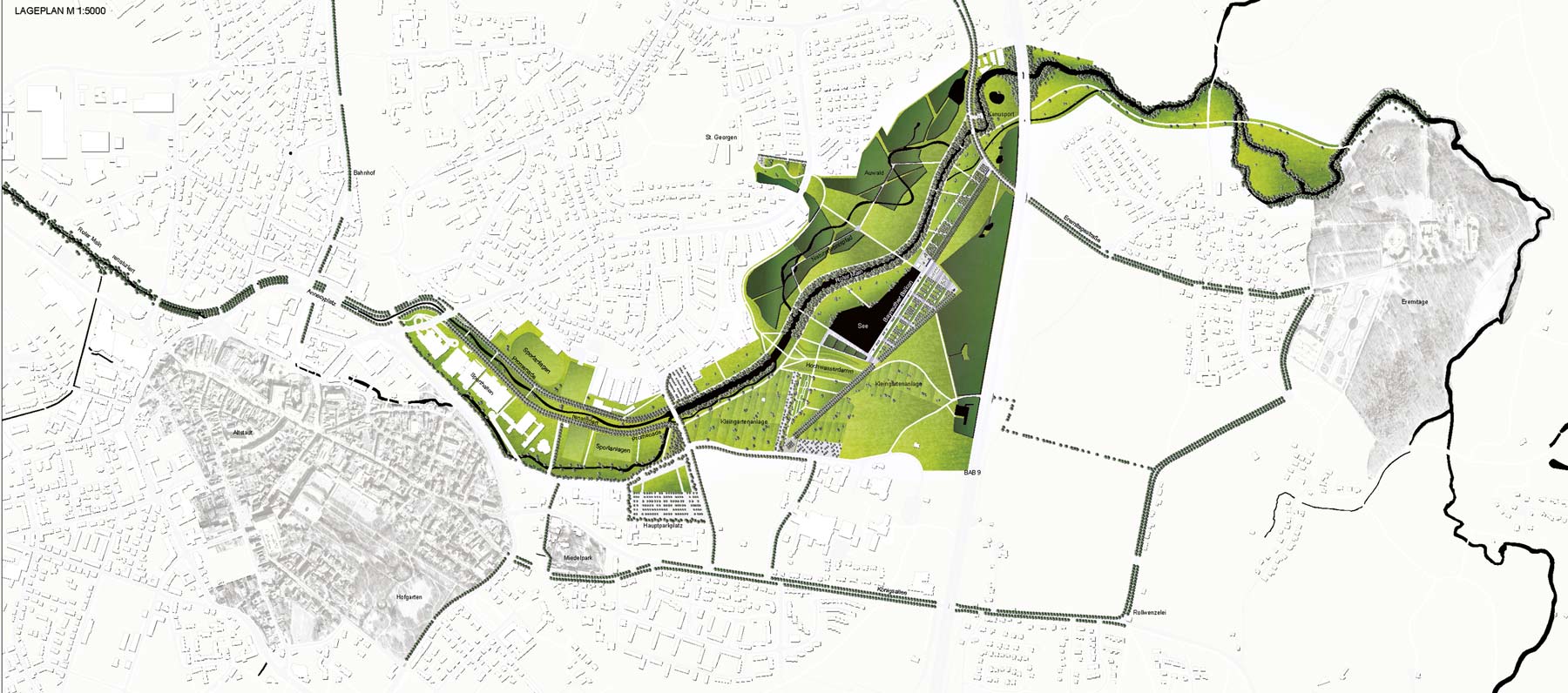
Die zentralen Elemente des Entwurfs sind zum einen die Schaffung eines Aueparks und eines Generationenparks, die sich als eigenständige und differenziert gestaltete Großräume gegenüber liegen und Alleen, die eine direkte Verbindung vom stadtnahem Eingang des Parks in Richtung Eremitage schaffen sowie der Bayreuther Balkon als neuer Freiraum in Höhenlage. Links des roten Mains entsteht eine dynamische Auenlandschaft, die vorwiegend Belange des Naturschutzes erfüllt und einen extensiv genutzten Freiraum darstellt. Dem steht auf der rechten Mainseite ein intensiv genutzter Generationenpark mit differenzierten Spiel- und Aufenthaltsflächen gegenüber. Der Generationenpark wiederum ist in drei große Teilbereiche gegliedert. Von Süden nach Norden ist dies ein großer offener Wiesenpark, im Anschluß an den Hochwasserdamm der zentrale Parkbereich, der durch einen großen See mit baumbestandenem Platz geprägt ist und abschließend eine baumbestandene Wiesenlandschaft, die von einem kathedralenähnlichen Spiel- und Freizeitband dominiert wird. Die Hauptverbindung erfolgt über die drei Alleen, die vom Eingangsplatz an der Äußeren Badstraße über den Hochwasserdamm entlang des Bayreuther Balkons durch die Wiesen bis zur Eremitagestrasse die direkte Verbindung von der Stadt bis zur Eremitage schaffen.


